Confine Usmate, loc.tà Fornace Lomagna
€ 440.000
Usmate Velate, Monza Brianza
Dettagli
Contratto Vendita
Rif Villa Usmate vicinanze
Prezzo € 440.000
Provincia Monza Brianza
Comune Usmate Velate
Vani 4
Camere 3
Bagni 3
Classe energetica
B (DL 90/2013)
EPgl,nren 90,76 kwh/m2 anno
Riscaldamento autonomo
Condizioni ottime condizioni
Anno di costruzione 2011
Cucina a vista
Consistenze
| Descrizione | Superficie | Sup. comm. |
|---|---|---|
| Principali | ||
| Immobile - piano terra | 58 Mq | 58 Mqc |
| Immobile - piano interrato | 55 Mq | 55 Mqc |
| Immobile - 1° piano | 58 Mq | 58 Mqc |
| Accessorie | ||
| Esterno - piano terra | 15 Mq | 2 Mqc |
| Terrazza - 1° piano | 10 Mq | 3 Mqc |
| Giardino/Resede | 220 Mq | 22 Mqc |
| Totale | 198 Mqc | |
USMATE VICINANZE, nelle colline della Località Fornace a Lomagna
In splendido contesto collinare, proponiamo in esclusiva elegante porzione di villa bifamiliare di recente costruzione, disposta su due livelli oltre piano interrato.
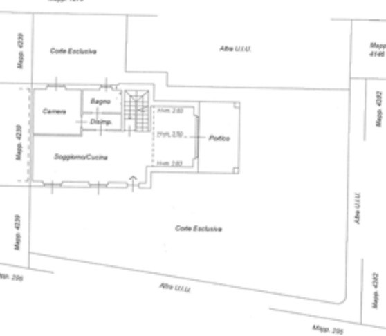
Al piano terra troviamo un luminoso ingresso su ampia zona living open-space con soggiorno e cucina a vista, affacciati su un piacevole portico coperto ideale per pranzi all'aperto, disimpegno, camera matrimoniale e bagno.
Al piano primo si sviluppa la zona notte, composta da due camere matrimoniali, di cui una con cabina armadio e accesso al terrazzo panoramico, oltre a bagno padronale di generose dimensioni.
Al piano interrato sono presenti una caratteristica taverna, lavanderia, cantina e disimpegno con accesso diretto al box doppio in larghezza.
La villa si presenta in ottime condizioni, sia strutturali che di manutenzione, ed è impreziosita da spazi esterni vivibili e un'esposizione che garantisce tranquillità, privacy e vista aperta sul verde, pur restando a pochi minuti dai principali servizi, scuole, mezzi pubblici e stazione ferroviaria.
Dotazioni: impianto d'allarme volumetrico e perimetrale, impianto d'irrigazione, predisposizione per aria condizionata e canna fumaria per camino in taverna.
Soluzione ideale per chi cerca indipendenza, tranquillità e comfort in un contesto residenziale esclusivo.
IMMOBILE IN COLLABORAZIONE CON LO STUDIO IMMOBILIARE "LOMACASE", Lomagna, via Milano 3
N.B. NOTA: I DATI SOPRA RIPORTATI SE PUR VERITIERI SONO DA INTENDERSI INDICATIVI E NON COSTITUISCONO ELEMENTE CONTRATTUALE.
In splendido contesto collinare, proponiamo in esclusiva elegante porzione di villa bifamiliare di recente costruzione, disposta su due livelli oltre piano interrato.
Al piano terra troviamo un luminoso ingresso su ampia zona living open-space con soggiorno e cucina a vista, affacciati su un piacevole portico coperto ideale per pranzi all'aperto, disimpegno, camera matrimoniale e bagno.
Al piano primo si sviluppa la zona notte, composta da due camere matrimoniali, di cui una con cabina armadio e accesso al terrazzo panoramico, oltre a bagno padronale di generose dimensioni.
Al piano interrato sono presenti una caratteristica taverna, lavanderia, cantina e disimpegno con accesso diretto al box doppio in larghezza.
La villa si presenta in ottime condizioni, sia strutturali che di manutenzione, ed è impreziosita da spazi esterni vivibili e un'esposizione che garantisce tranquillità, privacy e vista aperta sul verde, pur restando a pochi minuti dai principali servizi, scuole, mezzi pubblici e stazione ferroviaria.
Dotazioni: impianto d'allarme volumetrico e perimetrale, impianto d'irrigazione, predisposizione per aria condizionata e canna fumaria per camino in taverna.
Soluzione ideale per chi cerca indipendenza, tranquillità e comfort in un contesto residenziale esclusivo.
IMMOBILE IN COLLABORAZIONE CON LO STUDIO IMMOBILIARE "LOMACASE", Lomagna, via Milano 3
N.B. NOTA: I DATI SOPRA RIPORTATI SE PUR VERITIERI SONO DA INTENDERSI INDICATIVI E NON COSTITUISCONO ELEMENTE CONTRATTUALE.
Richiedi maggiori informazioni
Contattaci
Monaca Francesco s.a.s.
via Tosi, 3 20900 MONZA (MB)
via Tosi, 3 20900 MONZA (MB)
P.IVA: 09727880966
info@immobiliaremonaca.it
+390392842076






